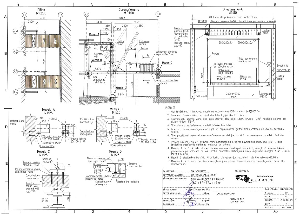
Mākslas centra Zuzeum pārbūve un mākslas krātuves jaunbūve

Lāčplēša iela 101, Rīga

1910.g. rūpniecības ēkas pārbūve par moderno mākslas centru
Būvkonstrukciju tehniskais projekts izstrādāts 2017.–2019. g.

Arhitektūra – Zaigas Gailes Birojs