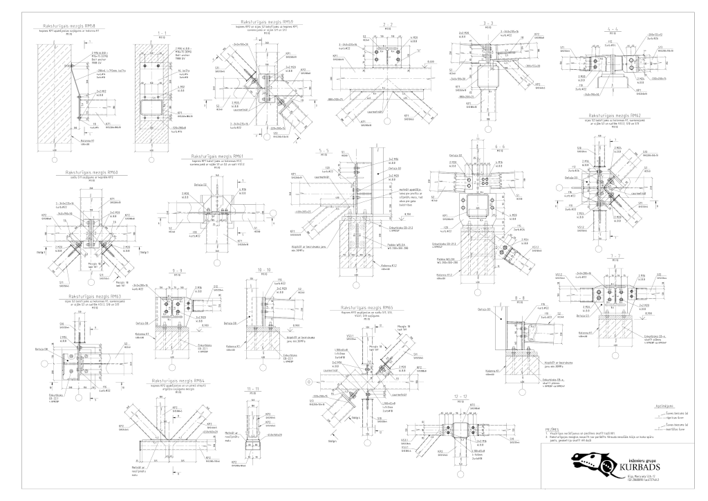
Supermarket in Sigulda

Vidzemes šoseja 38, Sigulda

Technical design of building structures developed in 2023.
Construction 2023–2024.

Architecture – Projektu birojs GrietÄ“ns un Kagainis