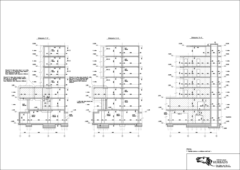
Residential buildings block

Aleksandrs Laime street 5, Riga

Technical design of building structures developed in 2016.

Architecture – AB3D