Residential building reconstruction

Residential building reconstruction in Riga, Kalnciema street 2b

Designing completed in 2013.

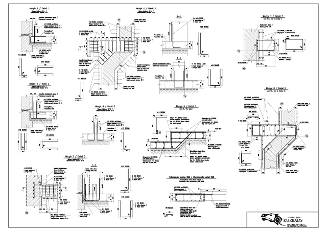
Complex reconstruction of building is designed. Reconstruction of existing masonry walls is designed, new slabs and roof will be built.

 Architecture - NRJA