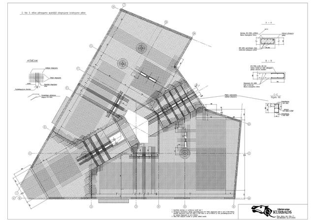
Multi-storey apartment house

Apartment house
Kraslavas Street 14, Riga
 
Technical design of building structures in 2006–2007.
Construction 2007–2009.
 
Architecture – MG Arhitekti