Dailes Theatre Small Hall reconstruction

Brīvības street 75, Riga

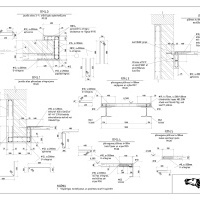
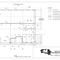
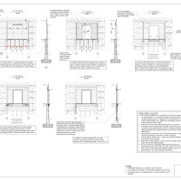
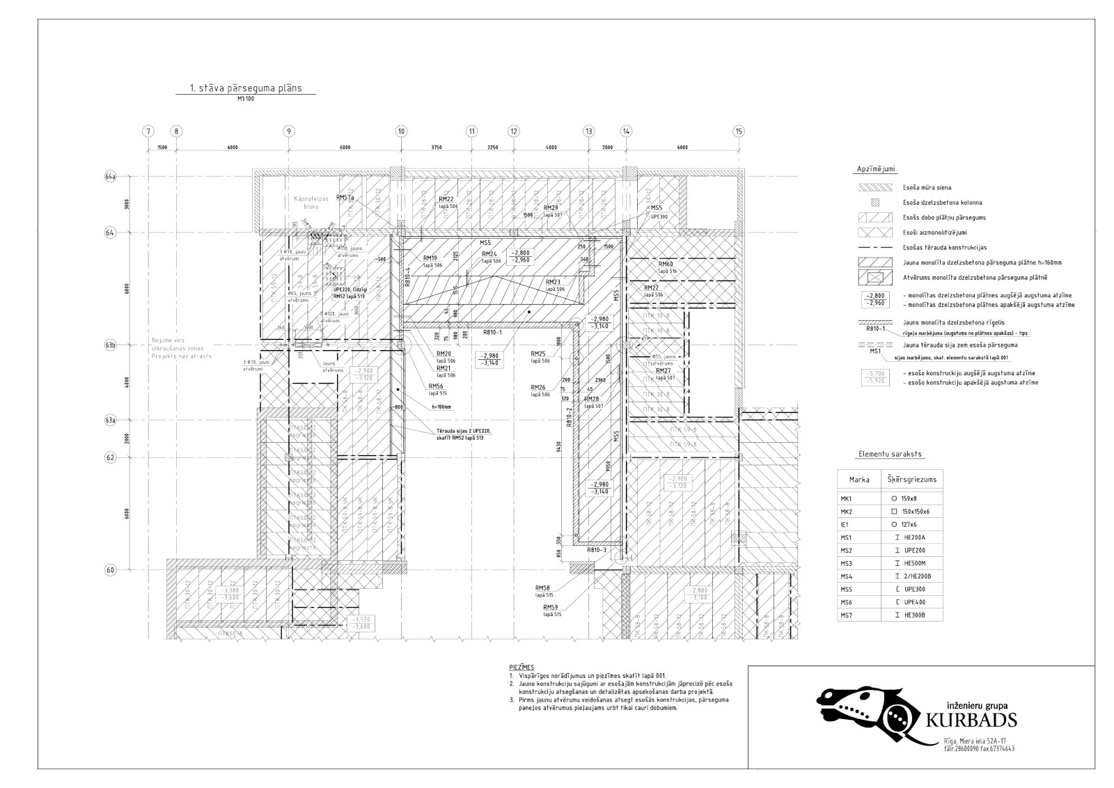
Technical design of building structures developed in 2021–2022.

Construction 2024–2025.

Architecture – Sudraba arhitektūra

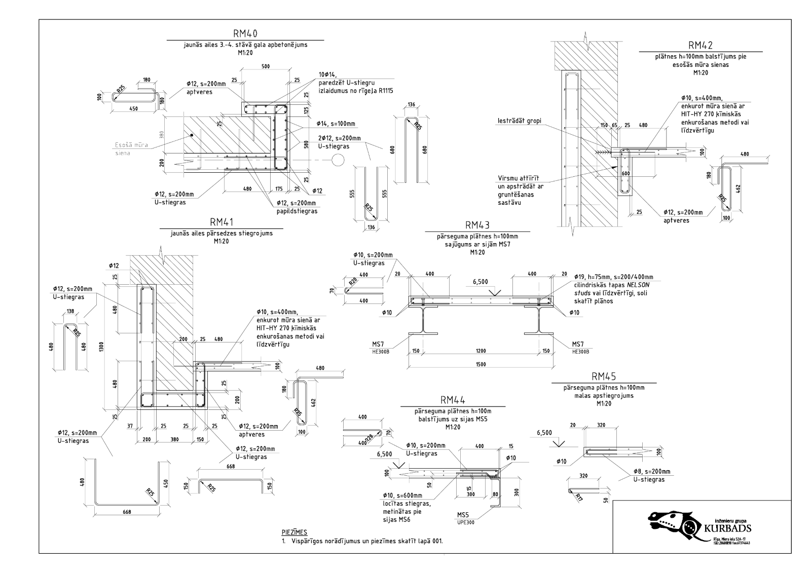
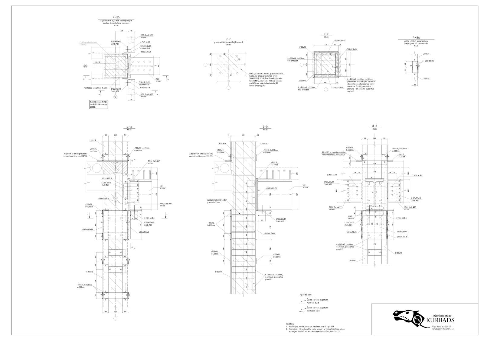
During a major reconstruction, the Small Hall of the Dailes Theatre was significantly expanded and a new rehearsal hall was built in the middle of existing administrative building, preserving the building’s facades, staircases and adjacent spans structures. The construction work was carried out without disrupting the theatre’s daily work, under a limited budget and a tight time schedule.