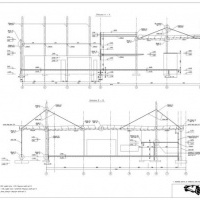
Auto center in Sigulda

Auto center
Vidzemes Highway 2, Sigulda
 
Technical design of building structures in 2004.
 
Architecture - SĪLIS, ZĀBERS UN KĻAVA